Compra Piso en Txibitena, Durango, Bizkaia, Durango

Piso en venta en Durango (Txibitena)

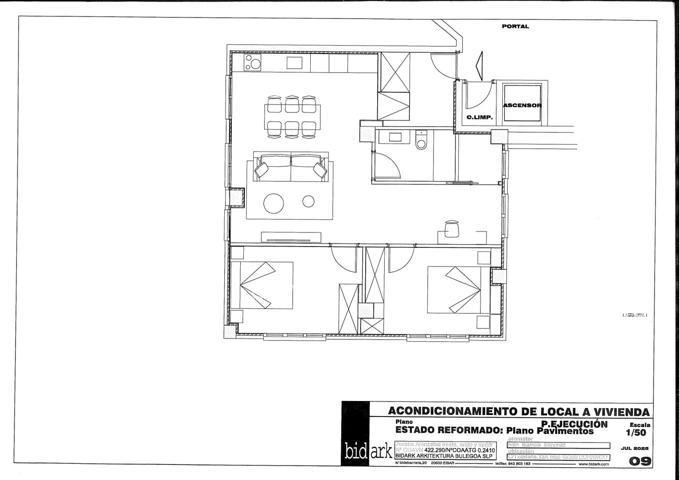
85 m²
4
1
2.294 €/m²

Descripción

La vivienda dispone de hall, salón cocina comedor de 35m2 con zona de tendedero de 2,5m2, baño de 4m2, habitación (1) de 12m2 y habitación (2) de 12m2.

Esta vivienda, que antes era un local, ya dispone del permiso de habitabilidad concedido. El inmueble se ofrece con dos posibilidades de compra: la primera incluye la venta con un proyecto arquitectónico ya diseñado por la propiedad, por un precio de 195.000 €. Alternativamente, en caso de no querer aceptar el proyecto propuesto, la vivienda se vendería por 120.000 €, permitiendo al comprador ejecutar un diseño propio desde cero.

traducir

Trovimap ID: 427056-39612827
Ref. Agencia: 002-4392

Características

Tipo

Piso

Planta

-

Año de construcción

-

Certificado energético

Popularidad

Última actualización

08 mar. 2026

Días en el mercado

122

Visitas

-

Compara y solicita la mejor hipoteca

Piso On Durango - Oficinas Centrales Piso On

Ver las propiedades de la agencia

¿Cual es el valor de tu inmueble?

Escribe tu dirección. Obtén al instante tu valoración GRATUITA