Compra Terrenos Edificables en Lorca

Parcela en venta en Lorca, La Hoya-Almendricos-Purias

-
4
1
-

Descripción

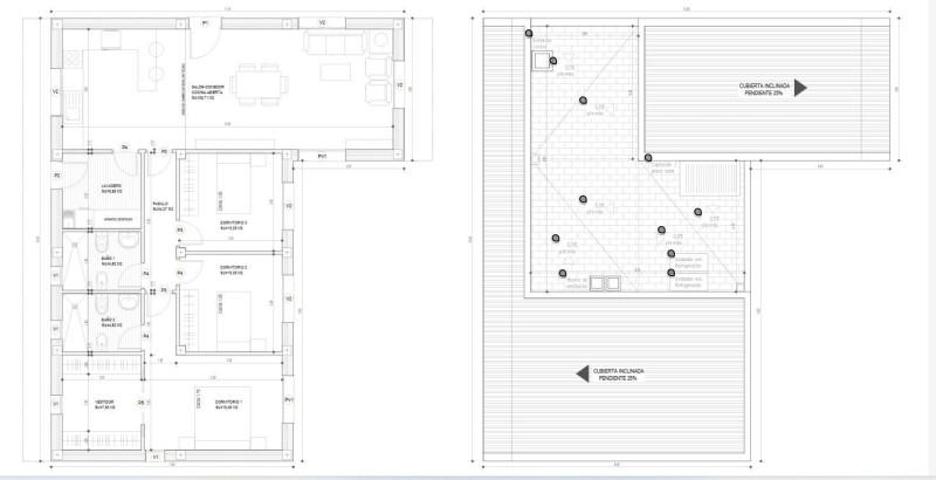
02762. Parcela de 1.112 m2 con proyecto y licencia en zona Torre del OBispo~~Oportunidad única para construir la casa de tus sueños en una exclusiva zona residencial a solo 10 minutos en coche del centro de Lorca.~~Esta amplia parcela de 1.112 m2 cuenta con acometida de luz y agua, licencia de obra en vigor y un proyecto arquitectónico aprobado para una vivienda de 122 m2, con posibilidad de ampliación hasta 300 m2. La normativa permite además la construcción de dos viviendas unifamiliares adosadas, ideal tanto para inversión como para vivienda familiar.~~El proyecto actual contempla:~~3 dormitorios~~Vestidor~~2 baños~~Salón-cocina de 40 m2 (con posibilidad de dividir en dos estancias)~~Posibilidad de piscina privada y sótano~~La parcela se encuentra en una urbanización privada que dispone de vigilancia durante todo el año y mantenimiento de jardines, lo que garantiza tranquilidad y comodidad en un entorno cuidado y seguro. Además, está situada cerca de parques y zonas verdes.~~Quedan muy pocas parcelas disponibles con estas características en la zona. No dejes pasar esta oportunidad para construir en una de las áreas más demandadas de Lorca.. Visítanos en Todopisos.

traducir

Trovimap ID: 382244-39742609
Ref. Agencia: DCZ-02762

Características

Tipo

Terrenos Edificables

Planta

-

Año de construcción

2021

Certificado energético

-

Características interiores

  • Mascotas:
    No Se Permiten Mascotas

Popularidad

Última actualización

22 mar. 2026

Días en el mercado

137

Visitas

-

Compara y solicita la mejor hipoteca

¿Cual es el valor de tu inmueble?

Escribe tu dirección. Obtén al instante tu valoración GRATUITA