Compra Agrícola en Diseminado dm p de la torre

Terreno en venta en Málaga, Ciudad Jardin - Jardin de Malaga

788 m²
4
1
1.015 €/m²

Descripción

25. ¡No pierdas la oportunidad de adquirir este espectacular solar en venta en Málaga, en la exclusiva zona de Ciudad Jardín - Jardín de Málaga!

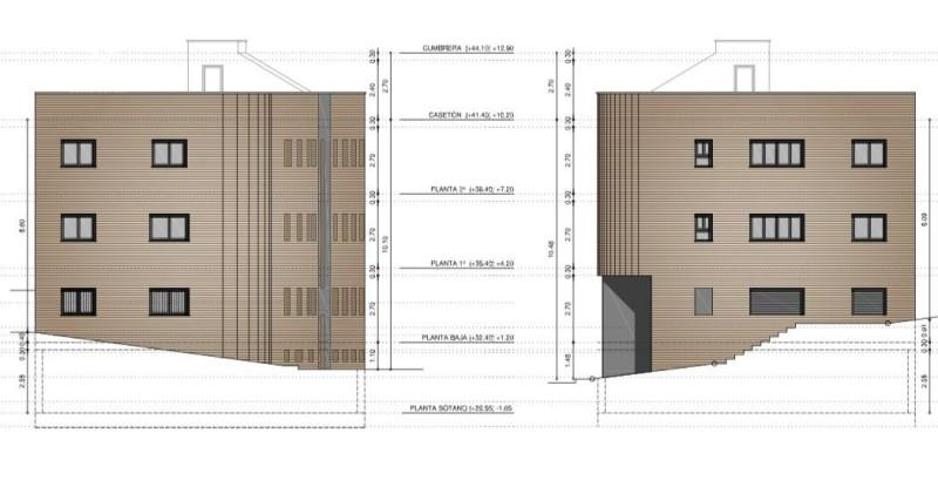
Para la construcción de pequeño edificio con sótano, B+2 para 10 viviendas, aparcamientos y trasteros.

15 Aparcamientos

6 Trasteros

9 Apartamentos 2 dormitorios

1 Apartamento de 4 dormitorios

¡No dejes pasar esta oportunidad única de inversión en una de las zonas más cotizadas de la ciudad!. Visítanos en Todopisos.

traducir

Trovimap ID: 382244-39714865
Ref. Agencia: TVZJ-25

Características

Tipo

Agrícola

Planta

-

Año de construcción

-

Certificado energético

-

Características interiores

  • Mascotas:
    No Se Permiten Mascotas

Popularidad

Última actualización

15 dic. 2025

Días en el mercado

33

Visitas

-

Compara y solicita la mejor hipoteca

¿Cual es el valor de tu inmueble?

Escribe tu dirección. Obtén al instante tu valoración GRATUITA