Alquiler Otro en Ferrol

Local comercial en alquiler en Ferrol, Centro

133 m²
4
1
9 €/m²

Descripción

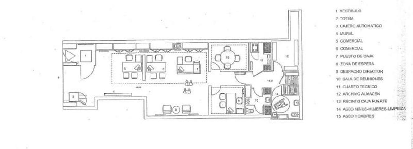
loc0105. Disponemos de un local perfectamente acondicionado para oficina. Fue entidad bancaria.

Muy céntrico y con visibilidad.

Distribuido ahora en cuatro puestos de trabajo, sala de reuniones, almacén y dos baños ( uno apto para minusválidos).

También en venta.

Se aceptan ofertas.IW. Visítanos en Todopisos.

traducir

Trovimap ID: 382244-39565555
Ref. Agencia: TJC-loc0105

Características

Tipo

Otro

Planta

-

Año de construcción

-

Certificado energético

-

Características interiores

  • Mascotas:
    No Se Permiten Mascotas

Popularidad

Última actualización

06 nov. 2025

Días en el mercado

39

Visitas

-

Compara y solicita la mejor hipoteca

¿Cual es el valor de tu inmueble?

Escribe tu dirección. Obtén al instante tu valoración GRATUITA