Compra Agrícola en Llucmajor

Terreno en venta en Llucmajor, Sa Torre

-
4
1
-

Descripción

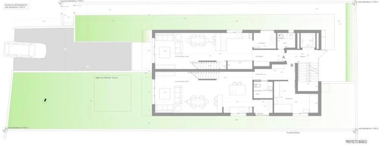
SU2089. SOLAR + PROYECTO DE EDIFICIO RESIDENCIAL EN LA URBANIZACIÓN DE SA TORRE, MALLORCA. ~~Se plantea un edificio de 4 plantas 3 sobre rasante y un sótano contará con un total de 4 viviendas, 2 en planta baja y 2 en planta segunda cada una de ellas formando duplex respecto a la planta primera. ~Las viviendas de último piso contarán con acceso independiente a la azotea, el acceso al vestíbulo principal se practicará lateralmente, cumplimiento del reglamento de barreras arquitectónicas el aparcamiento de vehículos se localizará en el sótano, al igual que los trasteros.~En total el edificio contará con 664 m2 totales, cada vivienda dispondrá de 164 m2 útiles. La azotea tendrá un total de 8\\\'60 m2.~~Ubicado en muy buena zona residencial, con instalaciones, zonas verdes y acceso a la playa a tan solo 5 minutos. A 15 minutos de Palma y 10 del aeropuerto. Contacte con nuestro personal especializado en la zona para poder conocer toda la información relevante de esta propiedad, o consulte más información a través de nuestra página web.~~ . Visítanos en Todopisos.

traducir

Trovimap ID: 382244-39491911
Ref. Agencia: WXS-SU2089

Características

Tipo

Agrícola

Planta

-

Año de construcción

2007

Certificado energético

-

Características interiores

  • Mascotas:
    No Se Permiten Mascotas

Popularidad

Última actualización

04 nov. 2025

Días en el mercado

46

Visitas

-

Compara y solicita la mejor hipoteca

¿Cual es el valor de tu inmueble?

Escribe tu dirección. Obtén al instante tu valoración GRATUITA