Compra Piso en Sabadell

Planta baja en venta en Sabadell, La creu de barbera

87 m²
4
1
3.139 €/m²

Descripción

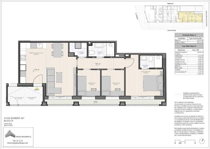
APS. MB immobles/ APIALIA SABADELL comercialitza aquesta planta baixa que forma part de la Promoció de pisos amb terrassa a la Creu de Barberà~~Excel·lent ubicació al cor del barri de la Creu de Barberà, concretament a l’Avinguda Barberà 447, cantonada amb el carrer de Fatjó. Perfectament comunicada i envoltada de tot tipus de serveis, supermercats i comerç de proximitat, aquesta promoció es presenta com una opció de compra ideal tant per viure-hi com per invertir.~~La promoció consta de 17 habitatges d’una, dues i tres habitacions, un local comercial, places d’aparcament i trasters. L’edifici disposa d’ascensor des de la planta soterrani fins a la quarta planta.~~Baixos 2a – Habitatge amb entrada independent i espais amplis a la Creu de Barberà~~Pis situat a la planta baixa amb accés independent des del carrer de Fatjó. Disposa de 87,45 m² construïts, distribuïts en tres dormitoris (un d’ells tipus suite), un segon bany complet, una sala d’estar/menjador amb cuina americana de més de 25 m², safareig independent i una galeria exterior de més de 5 m², que garanteix privacitat sense renunciar a la llum natural.~~Acabats moderns i funcionals:~~Tancaments d’alumini amb doble vidre i trencament de pont tèrmic~~Persianes elèctriques~~Fusteria interior lacada en blanc~~Terres de parquet amb sòcol blanc (gres porcellànic als banys)~~Banys completament equipats, amb plat de dutxa, sanitaris, aixetes, mobles, il·luminació, mirall i mampara.~~Cuina equipada amb mobiliari de la marca Santos, en combinació de blanc i olivera, amb frontal i encimera de Silestone. Inclou forn elèctric, microones, placa d’inducció, campana extractora i caldera mixta per a calefacció i aigua calenta sanitària.~~L’edifici presenta una façana de monocapa i obra vista, que aporta una estètica moderna i duradora.~~A la planta soterrani es troben les places d’aparcament i els trasters, i a la planta superior, una terrassa comunitària per a ús i gaudi dels veïns.~~No t\\\'ho perdis!. Visítanos en Todopisos.

traducir

Trovimap ID: 382244-39452341
Ref. Agencia: MCI-APS0215-000522

Características

Tipo

Piso

Planta

-

Año de construcción

2025

Certificado energético

-

Características interiores

  • Calefacción:
    Otro
  • Mascotas:
    No Se Permiten Mascotas
  • Sistemas de seguridad:

    Vigilante

Equipamiento

  • Ascensor:
    Si

Otros

Obra Nueva

Popularidad

Última actualización

30 nov. 2025

Días en el mercado

45

Visitas

-

Compara y solicita la mejor hipoteca

¿Cual es el valor de tu inmueble?

Escribe tu dirección. Obtén al instante tu valoración GRATUITA