Compra Agrícola en Córdoba

Terreno en venta en Córdoba, Arroyo del Moro - Noreña

200 m²
4
1
1.000 €/m²

Descripción

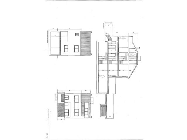
SÒL-IH-225. SOLAR EN ARROYO DEL MORO CON PROYECTO HECHO DE COMPRA OBLIGLATORIA PARA VIVIENDA UNIFAMILIAR.

Se proyecta una vivienda unifamiliar entremedianeras en dos plantas y sótano.

En el patio trasero se prevé la ejecución de una piscina.

El programa que desarrolla la vivienda es el siguiente:

Planta sótano:

- Trastero

- Escaleras de subida a planta superior.

Planta baja:

- Zaguán- distribuidor

- Despacho

- Aseo

- Salón Comedor- Cocina

- Aseo

- Escaleras acceso planta alta

- Patio

Planta alta:

- Distribuidor

- Dormitorios (3)

- Baños (3)

- Vestidor

- Escaleras de acceso a planta superior

Planta Cubierta:

- Azotea

- Desván

Para cualquier consulta no dudes en ponerte en contacto con nosotros.

Según Ley (Notaría, Registro e Impuestos) no incluidos.

Los honorarios de la agencia no están incluidos en este inmueble.

Los clientes consumidores que lo soliciten podrán disponer del Documento Informativo Abreviado (DIA)

Para ampliar información o realizar alguna visita, no dudes en ponerte en contacto con nosotros.

#ref:SÒL-IH-225. Visítanos en Todopisos.

traducir

Trovimap ID: 382244-39427951
Ref. Agencia: MUPW-SÒL-IH-225

Características

Tipo

Agrícola

Planta

-

Año de construcción

-

Certificado energético

-

Características interiores

  • Mascotas:
    No Se Permiten Mascotas

Popularidad

Última actualización

04 nov. 2025

Días en el mercado

43

Visitas

-

Compara y solicita la mejor hipoteca

¿Cual es el valor de tu inmueble?

Escribe tu dirección. Obtén al instante tu valoración GRATUITA