Compra Otro en Albacete

Local comercial en venta en Albacete, Centro-Villacerrada

51 m²
4
1
1.373 €/m²

Descripción

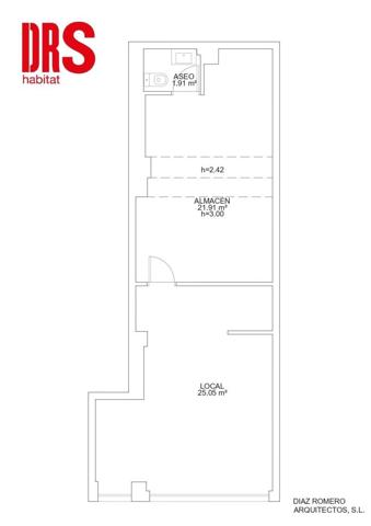
L-297. DRS HABITAT VENDE:~~Local comercial en Calle Pérez Galdós en Albacete, zona de paso. ~~Ideal para cualquier negocio, consta de 52 m2 y un aseo. Fachada de 5,40 m2.~~Más información en:~~DRS HABITAT SOLUCIONES INMOBILIARIAS INTEGRALES - TASACIONES - OBRAS Y REFORMAS - INTERIORISMO - DIAZ ROMERO ARQUITECTOS. -~Calle Parra, num 31 Albacete.. Visítanos en Todopisos.

traducir

Trovimap ID: 382244-39363809
Ref. Agencia: YIP-L-297

Características

Tipo

Otro

Planta

-

Año de construcción

1976

Certificado energético

-

Características interiores

  • Mascotas:
    No Se Permiten Mascotas

Popularidad

Última actualización

05 dic. 2025

Días en el mercado

45

Visitas

-

Compara y solicita la mejor hipoteca

¿Cual es el valor de tu inmueble?

Escribe tu dirección. Obtén al instante tu valoración GRATUITA