TroviValora
Puedes obtener el valor de cualquier inmueble residencial en toda España en menos de 2 minutos, y recibir un completo informe de valoración gratuito.
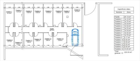
Datos públicos obtenidos de la Dirección General de Catastro y de la base de datos de Trovimap
| Planta / Puerta | Tipo | Metros cuadrados | Año de construcción | Referencia Catastral |
|---|---|---|---|---|
| 00 / B | Vivienda | 74 m² | 2002 | 8820401UG6482S0153GA |
| 03 / A01 | Almacén | 4 m² | 2001 | 8820803UG6482S0005DZ |
| 03 / A02 | Almacén | 5 m² | 2001 | 8820803UG6482S0007GM |
| 00 / A | Vivienda | 73 m² | 2001 | 8820803UG6482S0003AL |
| 00 / D | Vivienda | 100 m² | 2001 | 8820803UG6482S0035AL |
| 01 / D | Vivienda | 100 m² | 2001 | 8820803UG6482S0039GM |
| 02 / C | Vivienda | 92 m² | 2001 | 8820803UG6482S0042GM |
| 03 / C01 | Almacén | 4 m² | 2001 | 8820803UG6482S0038FX |
| 03 / A02 | Almacén | 4 m² | 2001 | 8820803UG6482S0040DZ |
| 03 / D02 | Almacén | 4 m² | 2001 | 8820803UG6482S0043HQ |
| 00 / A | Vivienda | 86 m² | 2002 | 8820401UG6482S0152FP |
| 02 / A | Vivienda | 86 m² | 2002 | 8820401UG6482S0156KF |
| 03 / B | Almacén | 4 m² | 2002 | 8820401UG6482S0153GA |
| 00 / B | Vivienda | 92 m² | 2001 | 8820803UG6482S0004SB |
| 01 / A | Vivienda | 73 m² | 2001 | 8820803UG6482S0005DZ |
| 00 / A | Vivienda | 84 m² | 2001 | 8820803UG6482S0033OJ |
| 00 / C | Vivienda | 92 m² | 2001 | 8820803UG6482S0034PK |
| 02 / A | Vivienda | 73 m² | 2001 | 8820803UG6482S0007GM |
| 03 / A | Almacén | 4 m² | 2001 | 8820803UG6482S0033OJ |
| 03 / D01 | Almacén | 4 m² | 2001 | 8820803UG6482S0039GM |
| 02 / B | Vivienda | 84 m² | 2002 | 8820401UG6482S0157LG |
| 03 / A01 | Almacén | 4 m² | 2002 | 8820401UG6482S0154HS |
| 01 / A | Vivienda | 101 m² | 2001 | 8820803UG6482S0036SB |
| 02 / A | Vivienda | 101 m² | 2001 | 8820803UG6482S0040DZ |
| 02 / B | Vivienda | 92 m² | 2001 | 8820803UG6482S0008HQ |
| 03 / C | Almacén | 4 m² | 2001 | 8820803UG6482S0034PK |
| 03 / C02 | Almacén | 4 m² | 2001 | 8820803UG6482S0042GM |
| 03 / A | Almacén | 6 m² | 2001 | 8820803UG6482S0003AL |
| 01 / A | Vivienda | 86 m² | 2002 | 8820401UG6482S0154HS |
| 03 / A | Almacén | 4 m² | 2002 | 8820401UG6482S0152FP |
| 03 / B01 | Almacén | 4 m² | 2002 | 8820401UG6482S0155JD |
| 03 / A02 | Almacén | 5 m² | 2002 | 8820401UG6482S0156KF |
| 03 / B02 | Almacén | 4 m² | 2001 | 8820803UG6482S0008HQ |
| 01 / B | Vivienda | 92 m² | 2001 | 8820803UG6482S0006FX |
| 02 / D | Vivienda | 100 m² | 2001 | 8820803UG6482S0043HQ |
| 03 / D | Almacén | 4 m² | 2001 | 8820803UG6482S0035AL |
| 03 / A01 | Almacén | 4 m² | 2001 | 8820803UG6482S0036SB |
| 03 / B01 | Almacén | 4 m² | 2001 | 8820803UG6482S0037DZ |
| 01 / B | Vivienda | 84 m² | 2002 | 8820401UG6482S0155JD |
| 03 / B02 | Almacén | 4 m² | 2002 | 8820401UG6482S0157LG |
| 03 / B | Almacén | 5 m² | 2001 | 8820803UG6482S0004SB |
| 03 / B01 | Almacén | 4 m² | 2001 | 8820803UG6482S0006FX |
| 01 / B | Vivienda | 67 m² | 2001 | 8820803UG6482S0037DZ |
| 01 / C | Vivienda | 92 m² | 2001 | 8820803UG6482S0038FX |
Puedes obtener el valor de cualquier inmueble residencial en toda España en menos de 2 minutos, y recibir un completo informe de valoración gratuito.